提案住宅コンセプト
八王子市平岡町。敷地面積は58.28 ㎡(17.62坪)。西八王子駅からもアクセス可能。浅川沿いの敷地です。
八王子駅からは徒歩25分。西八王子駅から徒歩20分。バス便であれば、平岡町バス邸から徒歩2~3分。駅から若干離れますが、八王子市内では街中も言えるこの地で、面積は小さいものの土地価格は1,380万円。注文住宅を建てても十分に現実的な予算内で検討可能な土地です。
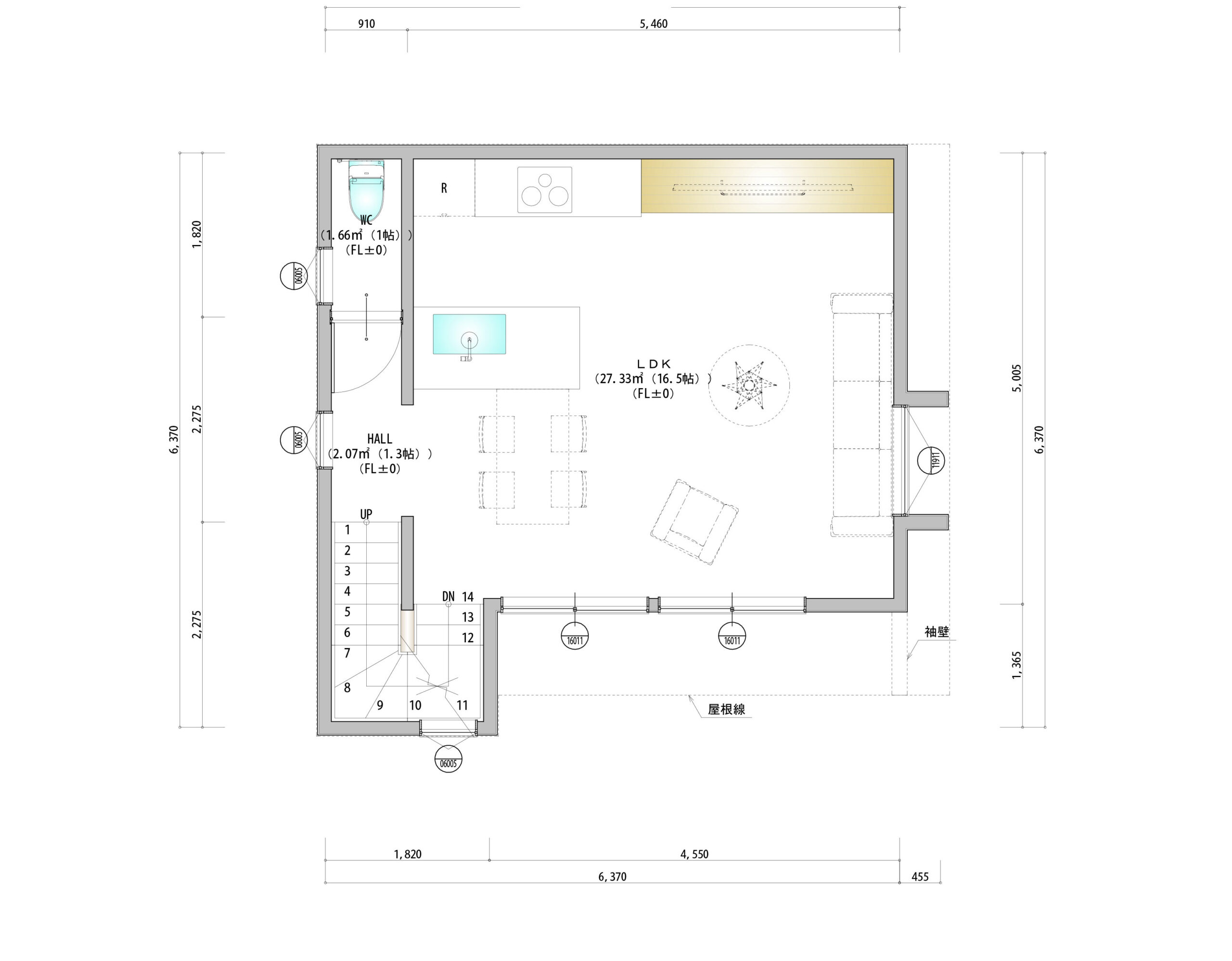
限られた土地面積でも、ファミリー世帯が暮らせる3階建の提案住宅プラン。1階には広々とした洗面脱衣室とUB。そして洋室が1部屋。2階に、狭小敷地とは思えない16.5帖のLDK。3階に主寝室と洋室の配置です。
2駅アクセス可能な土地でありながら、浅川沿いの穏やかでリラックスできるロケーション。街中と郊外のちょうど良い中間のような立地に建つ、都市型3階建。建売住宅では満足できない皆様にオススメの提案住宅です。
SOLDOUT 平岡町宅地は、販売済みとなりました。
八王子駅からは徒歩25分。西八王子駅から徒歩20分。バス便であれば、平岡町バス邸から徒歩2~3分。駅から若干離れますが、八王子市内では街中も言えるこの地で、面積は小さいものの土地価格は1,380万円。注文住宅を建てても十分に現実的な予算内で検討可能な土地です。
限られた土地面積でも、ファミリー世帯が暮らせる3階建の提案住宅プラン。1階には広々とした洗面脱衣室とUB。そして洋室が1部屋。2階に、狭小敷地とは思えない16.5帖のLDK。3階に主寝室と洋室の配置です。
2駅アクセス可能な土地でありながら、浅川沿いの穏やかでリラックスできるロケーション。街中と郊外のちょうど良い中間のような立地に建つ、都市型3階建。建売住宅では満足できない皆様にオススメの提案住宅です。
SOLDOUT 平岡町宅地は、販売済みとなりました。
TOKYO3980project 八王子市平岡町
土地価格
1,380 万円
建物価格
2,650 万円(税込)
※建物予算には、基本外構工事費も含みます。
※地盤調査実施後、地盤改良工事が発生する場合、別途費用がかかります。
※地盤調査実施後、地盤改良工事が発生する場合、別途費用がかかります。
※TOKYO3980projectは、提案住宅(参考プラン)です。完成予想図やCGパースは、イメージになります。
※掲載中の不動産情報は、建築条件のない、一般に流通している物件のため、先に手付け等が入り売約済みになる場合がございます。
※掲載中の不動産情報は、建築条件のない、一般に流通している物件のため、先に手付け等が入り売約済みになる場合がございます。
本物件の詳細は下記よりお問い合わせください。
Contact form
TOKYO3980 for sale
総予算4000万前後でご提案できる物件情報
TOKYO3980PROJECT を実現するための、
土地探し・土地選定からお手伝いしています。
ご家族の暮らし方のヒアリングから
どんなバランスの住まいを創り上げていくかを
ご提案させていただきます。
ご興味を持たれた方は、ぜひお問い合わせください。
土地探し・土地選定からお手伝いしています。
ご家族の暮らし方のヒアリングから
どんなバランスの住まいを創り上げていくかを
ご提案させていただきます。
ご興味を持たれた方は、ぜひお問い合わせください。
コンタクトフォーム
お電話でのお問い合わせは
TEL 042-512-8593
受付時間 : 9:30〜17:30(水曜日を除く)

