提案住宅コンセプト
青梅市長淵。東青梅駅から徒歩23分。 都内だけど、とてものどかな青梅市郊外の宅地です。駅から遠い分、多少不便かもしれませんが、土地面積は約77坪という広さで、価格は880万。車やバイクで生活をされる方には、ガレージライフを満喫するための住宅用地・ロケーションとしてうってつけです。
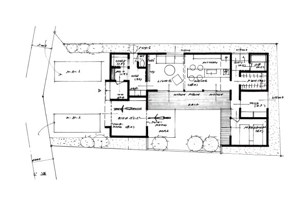
提案プランはビルトインバイクガレージのある平屋の住まい。 延床面積は28坪+ロフト付き。約77坪というゆとりの敷地あだからこそ叶う、「平屋+コートハウス」のプランニング。プライバシー抜群の開放的な中庭スペースは、最高のアウトドアリビングで、愛犬家の方にも最適です。
無難に人気のエリア・満遍なくそれなりのもの、という平均的発想ではなく、通勤時間 や 買い物の利便性とのトレードオフで住宅用地を選択することで、リーズナブルで現実的な予算感でも、こんなにも豊かな暮らし・豊かな住まいが手に入る。都心賃貸 ↔ 郊外でゆとりの持ち家、という2拠点生活やセカンドハウスにも最適。TOKYO3980のコンセプトをまさに体現したご提案です。
提案プランはビルトインバイクガレージのある平屋の住まい。 延床面積は28坪+ロフト付き。約77坪というゆとりの敷地あだからこそ叶う、「平屋+コートハウス」のプランニング。プライバシー抜群の開放的な中庭スペースは、最高のアウトドアリビングで、愛犬家の方にも最適です。
無難に人気のエリア・満遍なくそれなりのもの、という平均的発想ではなく、通勤時間 や 買い物の利便性とのトレードオフで住宅用地を選択することで、リーズナブルで現実的な予算感でも、こんなにも豊かな暮らし・豊かな住まいが手に入る。都心賃貸 ↔ 郊外でゆとりの持ち家、という2拠点生活やセカンドハウスにも最適。TOKYO3980のコンセプトをまさに体現したご提案です。
TOKYO3980project 青梅市長淵
土地価格
880万円
建物価格
ASK(税込)
※TOKYO3980projectは、提案住宅(参考プラン)です。完成予想図やCGパースは、イメージになります。
※掲載中の不動産情報は、建築条件のない、一般に流通している物件のため、先に手付け等が入り売約済みになる場合がございます。
※掲載中の不動産情報は、建築条件のない、一般に流通している物件のため、先に手付け等が入り売約済みになる場合がございます。
本物件の詳細は下記よりお問い合わせください。
Contact form
TOKYO3980 for sale
総予算4000万前後でご提案できる物件情報
TOKYO3980PROJECT を実現するための、
土地探し・土地選定からお手伝いしています。
ご家族の暮らし方のヒアリングから
どんなバランスの住まいを創り上げていくかを
ご提案させていただきます。
ご興味を持たれた方は、ぜひお問い合わせください。
土地探し・土地選定からお手伝いしています。
ご家族の暮らし方のヒアリングから
どんなバランスの住まいを創り上げていくかを
ご提案させていただきます。
ご興味を持たれた方は、ぜひお問い合わせください。
コンタクトフォーム
お電話でのお問い合わせは
TEL 042-512-8593
受付時間 : 9:30〜17:30(水曜日を除く)

